本文转自:一起设计
微信公众号ID:together-design

办公室设计
Grammarly
现在的人越来越在乎工作场所的效率和舒适性,办公室的设计也一直在朝着营造轻松氛围的方向发展。
Grammarly 是一家国际 IT 公司,在旧金山、纽约和基辅设有办公室。他们邀请到设计事务所 Balbek Bureau 来为他们设计位于基辅的新办公室。

△已完工办公室一角
Balbek Bureau 是一所专门做建筑与室内设计的公司,已经成立了 11 年,整个公司有 40 名设计师。
负责 Grammarly 项目的设计团队,则由 4 位设计师组成。

△项目负责团队
01.
整体规划
由于公司运营的性质,需要不同活动类型的各种空间,包括有 150 个座位的大型聚会区、小型会议室、员工食堂、休息区、午睡室、接待区……

△剖面图
在决定办公室的地点以后,设计师们前后做了大概 4个不同方案的平面图,并选择其中最合适的一个。

△不同的方案平面图
最终出来的方案,有着非常明确、流通的分区,并且最大的特点就是一条漂浮于空中、如同云朵丝带一般的走道。

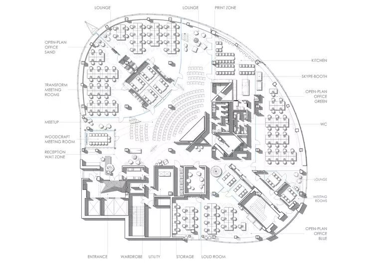
△一层平面图

△二层平面图
看看下面这张空间体块分析图,虽然有点长,但你可以很明显地看到整个办公空间中有哪些组成的元素,以及整个空间的规划 ▼

整个办公室为 2 层楼,楼层面积为 1300㎡,夹层面积为 450㎡,天花板高度为 3-8.8m。
通过下面这个简单的效果图,奠定了整个工作室的氛围和风格基调 ▼

办公室的整体设计规划好以后,便开始动工。


△尚未动工的模样
在施工团队的努力之下,这个什么都没有的空间,将会变身成一个时尚、舒适的办公场所。

△施工经过
02.
办公室入口

在不改变墙体的情况下,设计师对入口做了相当特别的设计,用几块三角形的木头拼接成了一个特殊形状的支撑结构。
并且在地上也做了 2 块形状来呼应入口的设计。

△设计草稿


△施工图纸


△施工现场照片
前台采用实心橡木制成,并且配有一个 4 米长的大花盆架,为了让接待区更加实用,还设计了一个落地式的储物架,并且通过一个可以滚动的梯子,到达顶部的货架。


△前台设计草稿与位置



前台是 Balbek Bureau 专门为这个项目而设计的家具之一,后面还有更多的设计。
前台的休息区以木材为主,并且配以绿植,有一种非常自然的感觉,墙面上的小猴子拿着一盏灯,活泼有趣。


03.
工作区域

整个办公室的工作区布局,被分成了 6 个开放式的工作空间,每个空间都有隔音的特性,而且有着不同的颜色。每个区域都会有 2 间可以容纳 8-15 人的会议室。
蓝色区位置分布 ▼



在办公室里有时需要完全私密的空间打电话和交谈,设计师还专为客户定制了一个可供 2 人使用的自动隔音房,配有壁挂式的折叠桌和极具私密性的照明,这个隔音房在每个工作区域都有。

这个隔音房是一个装有透明窗户的盒子,吸音织物面板围绕房间的周边放置,而且有完善的通风系统、消防系统。

△设计草稿

△设计图
除了前面说的前台是特意设计的之外,办公桌也是特别定制的设计,你能看到下图的办公桌 ▼

办公桌名为「G-Table」,是一个更具功能性的桌子,它有内置的充电器、电缆和固定盒,而且还可以按照喜好拆卸、安装。


每个桌子都有一个绿植的内置盆栽。

绿色区位置分布 ▼





黄色区位置分布 ▼

黄色区会议室的外观看上去就像一个带着「烟囱」的小房子,非常有趣 ▼





仔细观察的话,你能看到整个办公区域的地板是有点「花样」的,通过在木地板覆盖绿色的地毯材料,把每个区域的聚焦点带了出来 ▼


△设计图纸

04.
空中桥梁


△设计手稿
在这整个空间中,有一个最关键的元素——那就是这个桥梁。它以柔和的曲线环绕着办公室,将办公室的各个功能区域相互连接。
你可以从下方的动图感受到这座桥梁在整个空间中所起的作用 ▼


△平面图

整座桥梁采用的是钢材,并且配合胶合板的护套、粘粘 PVC 材料并安装 LED 灯条。


05.
其他设施

办公室还设置了休息厅、阅读区、聚会大厅、食堂、影音室,甚至还有专门的午睡区,可以说是应有尽有,在这里上班能享受最舒适的环境。



△休息厅
有的休息厅就像是在野外露营一样,甚至还有营火可以取暖。



△休息厅



△阅读区


△旋转楼梯

△旋转楼梯设计图
午睡区可不是简单的房间而已,这些小房间都特意安装能强力隔离光的窗帘,并且在床垫上装了重量传感器,只要有人躺在上面,传感器就会感受到,并且让指示灯「zZZ」亮起,表示有人正在使用。


△午睡区
办公室的聚会大厅位于底层,这里被打造成一个非常开放式、且富有活力的区域。



△聚会大厅



△食堂


△更衣室


△卫生间

Grammarly 在基辅的这间办公室,经过 Balbek Bureau 的设计之后,确实成为了一个富有活力、而且时尚舒适的办公空间,不仅有着强烈的概念和细节,也有着很人性的执行力。

△影音室
室内有着温暖的色调、温馨的感觉,广泛使用天然木材,但同时又有着创造性,也有着丰富的自然光分布,这种办公室设计,你喜欢吗?
//
本文转载至公众号「一起设计」




