
都说「没做过装修的行政是不完整的」。
办公室装修对于行政人来说,可谓是职场生涯的必修课。
一场装修涉及非常多的事项,平面图、效果图、立面图、剖面图...第一次接手做装修的行政小白听到装修的这些各项名词,很容易立刻头大如麻,还有放线、竣工验收超多流程词...
既然是必修课,那就不妨像学习一样,先来了解这门课程的那些概念名词,搞懂以后就能更轻松应对装修各方了。
也叫俯视图,是指在某一水平方向的投影,能看得见的轮廓线用实线:看不见的轮廓线用虚线。

△图源HTD赫韬建设
室内设计师表达创意构思,并通过3D效果图制作软件,将创意构思进行形象化再现的形式。


△图源HTD赫韬建设
根据透视原理,用高视点透视法从高处某一点俯视地面起伏绘制成的立体图。

△图源HTD赫韬建设
指人在办公室内和办公室外移动的点,结合起来就称之为动线。合理的动线设计在办公空间中特别重要,如何让办公室内走动的人轻松愉快,空间合理而便捷,具备装修甲级资质的工装公司都会合理的规划动线,注意每个细节。

△图源HTD赫韬建设
也叫正视图,是指在正立面方向的投影,同平面图。

△图源HTD赫韬建设
指用一个平面将物体分割开来,被剖到的实体部分用斜线表示,其他部分按投影方式。

△图源HTD赫韬建设
指某一结构交叉点,用视图很难表达出来,在本张图纸上或另一张图纸上将其放大,表现出各结构点之间的关系。

△图源HTD赫韬建设
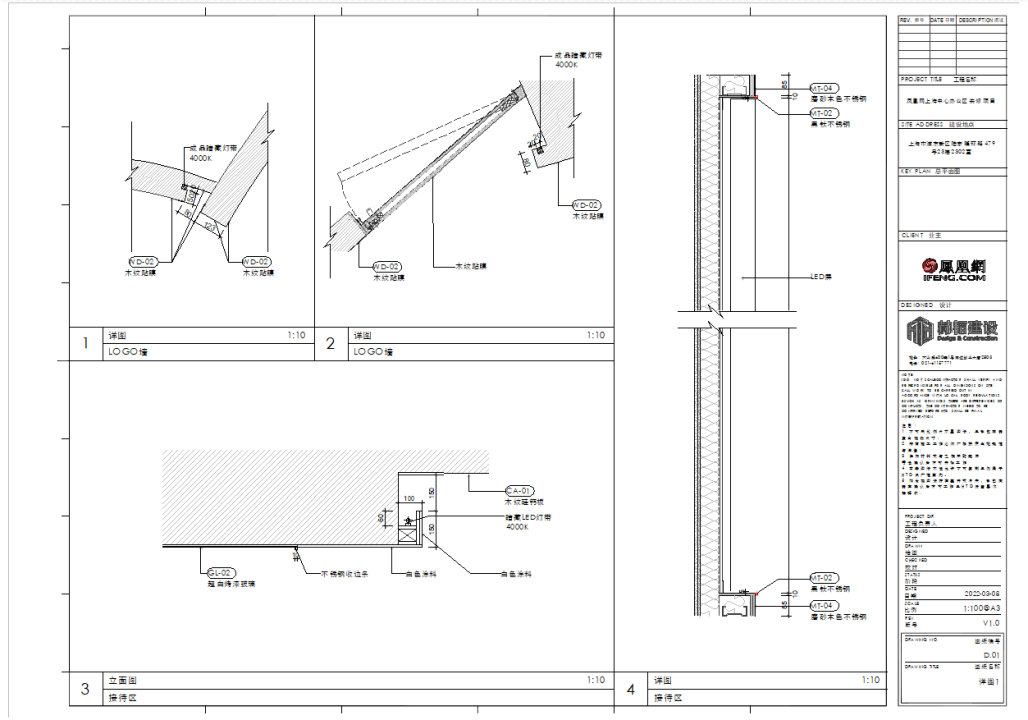
用于施工图,在平面图或立面图上很难将一细小部分完全体现出来,将其比例放大,将每一细小部分都表示清楚,包括尺寸。

△图源HTD赫韬建设
是指将某一图形或物体各个方向按照同一比例进行放大或缩小,那么这个缩放比例就是比例尺。一般是用图纸尺寸比实际尺寸,将尺寸小的用1表示。
构成合同的由发包人向承包人发起的中标书面文件;

△中标邮件
总包合同指约定一家承包商组织实施某项工程或某阶段工程的全部任务,对业主承担全部责任的合同。
承包商仅按合同规定承担报价的风险,即对报价(主要为单价)的正确性和适宜性承担责任;而工程量变化的风险由业主承担。
这种合同以一次包死的总价格委托,除了设计有重大变更,一般不允许调整合同价格。所以在这类合同中承包商通常承担了全部的工程量和价格风险。
承包人用于保证其在缺陷责任期内履行缺陷维修义务的担保金额。
已标价工程量清单:由承包人填写并标明的装修工程量清单,包括表格和说明;
业主对承包商考核安全文明状况的扣款;
系指业主,业主根据施工单位提报的物资计划,进行供应。业主和施工单位结算时会从工程款里扣减甲供材料费。
这是指在办公室装修中所有的工作都由公装公司承担。把主材和辅材的购买、施工、监工、建筑垃圾等等都由公装公司解决。
进度计划的表现形式之一,每道作业在时间轴上准确摆放,清楚形象地表明作业的计划时间。

△图源HTD赫韬建设
一定要与施工单位先在现场仔细收楼,包括门(合叶、把手)、窗(把手、玻璃是否有损坏)、围栏窗台是否有划痕,大厦提交的空调、消防设施是否运行良好。
特别是租赁的写字楼,进场前交接一定要清楚,损坏的地方一定要告知大厦要修复,划痕类与自己无关,将来退租后,可以避免相互扯皮。

△图源HTD赫韬建设
所谓施工放线就是把图纸上的内容用墨线施画到实际天、地墙面上,相当于将图纸转移到现实现场中,做到1:1还原。并按测量资料给予标注标记。
再以此检查有无冲突或不合实用的地方,是对设计工作的进一步检验验收。

△图源HTD赫韬建设
顾名思义,就是指完工后表面看看不到的项目。包括防水层、水电走向路线、墙面基础处理、地基处理、龙骨等项目。

△图源HTD赫韬建设
就是指所有工程完成后的验收。这个验收是检查所有的装修项目,在分段验收的基础上确认装修没有问题再根据合同和装修方案进行验收。
指除装修合同中写明的项目外,还想增加或者减少某些装修项目。
是指在某一单位工程开工前,或一个分项工程施工前,由相关专业技术人员向参与施工的人员进行的技术性交待,其目的是使施工人员对工程特点、技术质量要求、施工方法与措施和安全等方面有一个较详细的了解,以便于科学地组织施工,避免技术质量等事故的发生。
工程项目竣工决算书是由建设单位编制的反映工程项目实际造价和投资效果的文件,是竣工验收文件的重要组成部分。
包括:从筹划到竣工投产全过程的全部实际费用,即建筑工程费用、安装工程费用、设备工具、器具购置费用和工程建设其他费用以及预备费和投资方向调节税支出费用等。
对于不在正确路径上的空调风口管道、喷淋头等移位调整,重新安装到正确位置,这个调整过程叫追位。
通常大家可能认为主材就是装修的主要材料,其实不然,这里所说的主材指的是按施工面积或者单项工程涉及的成品或半成品的材料。
如轻钢龙骨、石膏板、乳胶漆、地毯、地板(实木地板、强PVC地板、复合地板)、瓷砖铝扣板、门、玻璃、石材、窗帘、开关面板、等等都属于主材。
指在装修中消耗多少难以进行明确计算的材料。比如水泥、铁钉、胶布、粘合剂、沙子、防水、线、管、板材、等等不能用数量计算的材料属于辅材。
指市电系统\照明系统等供配电系统,包括空调线、照明线、插座线、动力线、高压线之类的。
也叫综合布线+设备安装调试:用于信息传递,比如电话线、网线、音/视频线等;
建筑构造之一,阴角指凹进去的墙角,如顶面与四周墙壁的夹角;阳角指凸出来的墙角,如走道转弯处两堵墙形成的夹角。

△图源网络
指支撑着上部楼层重量的墙体,在工程图上为黑色墙体,打掉会破坏整个建筑结构;
是指不支撑着上部楼层重量的墙体,只起到把一个房间和另一个房间隔开的作用,在工程图上为中空墙体,有没有这堵墙对建筑结构没什么大的影响,利用轻钢龙骨隔墙。
是墙面装饰中的一种,表面为装饰布,内层为海绵,摸上去非常柔软,颜色多样,是非常好的装饰材料,隔音降噪的效果也非常出色。
公装中有很多交接部位,为不让其裸露在外,常用木条线等覆盖,称为收口。
PVC地板主要使用的材料就是PVC材料, 这是一种时下非常流行的可再生地面装饰材料,在办公空间装修设计中很常见。
按国家发布的标准中,生态板通常被分为E0、E1、E2级别这三种,其中,E0属于环保级别中最高的一种,甲醛含量小于等于0.5mg/L。
类似大芯板又名细木工板,是将实木的木板拼接到一起,两侧用胶合板粘贴,形成一种标准的板材。
是使用中密度人造板或者高密度人造板经过模压,覆膜,裁边,裁接口等工序制造而成的地面装饰材料。耐磨,但也怕水怕潮。
地面找平是指将建筑物的原始地面,通过一定的方法找平,使地面平整度符合国家关于地面找平的规定,并利于地板、瓷砖等地面装饰物的铺贴或安装。
地面找平有两种方法,一种是普通的水泥泥浆找平,这种方法平整度无法做到很完美,对施工者的技术要求也非常高。
第二种方法是自流平地面找平。是现在广泛应用的一种新型的施工方法,自流平施工非常便捷、地表面的强度比较高、地面平整度非常高。现在广泛应用于酒店地面、办公室地面、工厂地面、仓库地面等地面的找平。

△图源网络
● 顶面工程:顶面喷涂、局部石膏板吊顶、格栅灯等
● 墙面工程:石膏板隔断、不锈钢钢化玻璃隔断和高隔间
● 地面工程:地砖、地毯、以及地胶
● 强弱电工程:办公区强弱电布线
● 广播监控门禁:摄像头、音响、门禁设备及布线
● 空调工程:风道改造,设备维修、维护等
● 消防工程:喷淋、烟感、备案、验收等
● 家具:家具的选型、安装等

当然,仅仅搞懂这些装修专有名词,对搞定一次装修来说,是不够的,但却有助于了解后更容易上手。
更多有关装修的项目管理方法和经验,我们也写过很多了,可以点击下方来了解。
-END-
本文大力感谢HTD赫韬建设、天元世纪、凯仑建筑等公司的支持
知识互动分享
还有什么词
是你第一次接触装修时
最搞不清楚的?
来和大家分享一下





